Добави в бележник
Напиши мейл
Офертата е проблемна



















|
Град: Варна област Област: Варна област Квартал: с.Тополи Вид имот: парцел Акция: продава Пусков срок: Готов |
Цена: договаряне за квадрат: договаряне Чиста квадратура: 6650 кв. м. Обща квадратура: 6650 кв. м. Етаж: не от общо: не Изложение: всички |
Продавам парцел с площ 6650 кв.м. до разсадника в с. Тополи.
Парцелът (очертан в жълт цвят на сателитните снимки) е с 50 м. лице на път на запад; дължини 144 м. на север и 149 м. на юг и широчина 46 м. на изток. Комуникации в близост: ток, вода. Възможност за собствен водоизточник.
Предлагам за продажба лични недвижими имоти с до 50% временни отсъпки от цените в производствени, логистични, вилни и жилищни зони на главни пътища, УПИ, на магистралата до логистичен център летище Варна, пристанището, пред гробищата, крайезерния път, домостроителния комбинат, в Тополи, Аксаково и др. Подробно описание, местоположение, параметри и цени може да разгледате на:
https://oferti.bazar.bg/
Цените с временни отстъпки са окончателни и важат до края на 2017 г. (възможно е според конюктурата на пазара да бъдат коригирани възходящо). От началото на 2018 г. се прилага стандартната пазарна цена.
тел: 0887266955
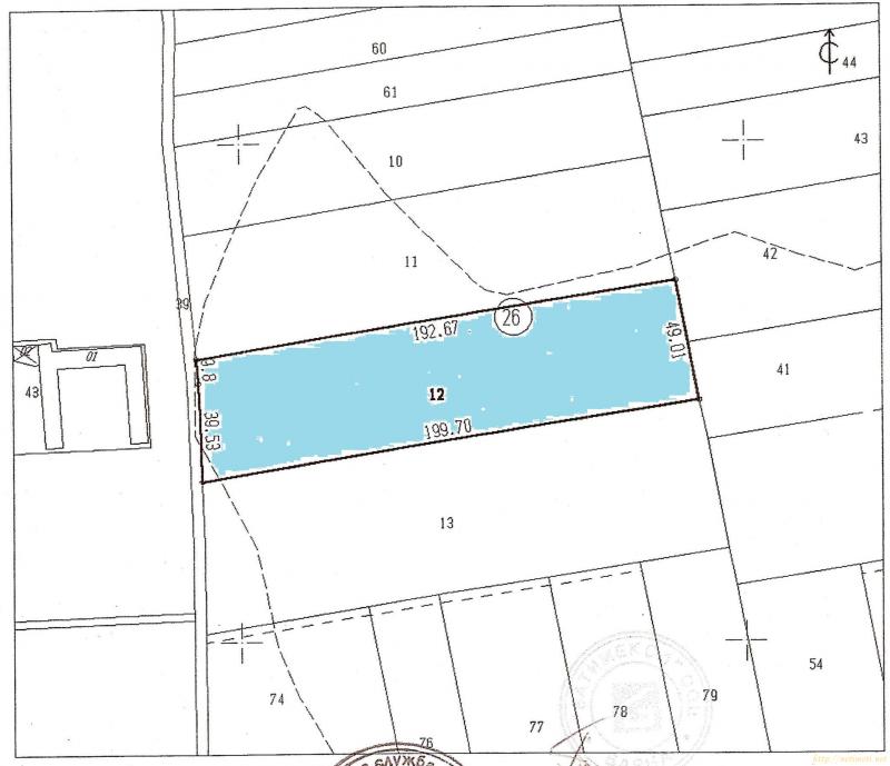
В същата местност на 20 м. южно предлагаме за продажба ВТОРИ парцел с площ 9 599 кв.м. до разсадника в с. Тополи, граничещ с люпилня „Полтри”. Имотът е с лице на запад 50 м.; дължини 193 м. на север и 200 м. на юг; и широчина на изток 49 м. Комуникации (ток, вода): на границата на имота. В непосредствена близост има изградени ферми, оранжерии, разсадници и постройки. В района може да разгледате и други обозначени наши имоти.
Препоръчваме при контакт да уточните, че сте видяли тази информация в Портал за недвижими имоти netimoti.net с цел актуализирането на офертата!
По този начин, продавача или купувача на имота, ще може да редактира данните и да ги актуализира ако има промяна.
Ново търсене за:
продава - Варна област - с.Тополи - парцел »
или ново търсене за: продава - Варна област - с.Тополи »
или ново търсене за: продава - Варна област - парцел »
или корекция на критериите за търсене »
Компютри, монитори, лаптопи:
Тонер касети и ремонт на принтери
Място за Вашата реклама в Портал за недвижими имоти NETIMOTI.NET
Администрация и поддръжка на сайта:
София Компютърс ЕООД : компютри, монитори, лаптопи, телефони, таблети, принтери и скенери: поправка на компютри, ремонт на компютри, ремонт и поправка на лаптопи, компютърни услуги и сервиз за компютри
Изработка на сайта, Web Design и оптимизация: DGP; 2008y. Remake: 2013y.
Този сайт използва „бисквитки“ (cookies). Разглеждайки съдържанието на сайта, Вие се съгласявате с нашите условия за ползване и използването на „бисквитки“.
Съгласен съм