Добави в бележник
Напиши мейл
Офертата е проблемна



















|
Град: Варна област Област: Варна област Квартал: с.Аксаково Вид имот: парцел Акция: продава Пусков срок: Готов |
Цена: договаряне за квадрат: договаряне Чиста квадратура: 3355 кв. м. Обща квадратура: 3355 кв. м. Етаж: не от общо: не Изложение: всички |
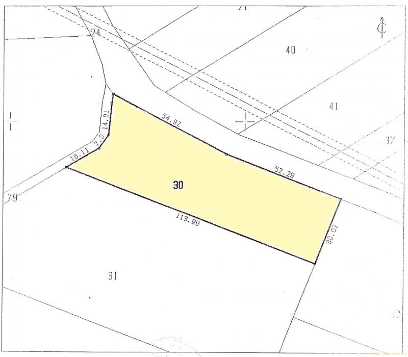
Продавам парцел с площ 3355 кв.м. с лице на път до регулация.
Предлагам за продажба лични недвижими имоти с до 50% временни отсъпки от цените в производствени, логистични, вилни и жилищни зони на главни пътища, УПИ, на магистралата до логистичен център летище Варна, пристанището, пред гробищата, крайезерния път, домостроителния комбинат, в Тополи, Аксаково и др. Подробно описание, местоположение, параметри и цени може да разгледате на:
https://oferti.bazar.bg/
Цените с временни отстъпки са окончателни и важат до края на 2017 г. (възможно е според конюктурата на пазара да бъдат коригирани възходящо). От началото на 2018 г. се прилага стандартната пазарна цена.
тел: 0887266955
Поради обявената най - ниска цена на предлагане на пазара в местността, стратегическо положения и перспективата за развитие в района, предлагания имот представлява отлична инвестиция.
Препоръчваме при контакт да уточните, че сте видяли тази информация в Портал за недвижими имоти netimoti.net с цел актуализирането на офертата!
По този начин, продавача или купувача на имота, ще може да редактира данните и да ги актуализира ако има промяна.
Ново търсене за:
продава - Варна област - с.Аксаково - парцел »
или ново търсене за: продава - Варна област - с.Аксаково »
или ново търсене за: продава - Варна област - парцел »
или корекция на критериите за търсене »
Компютри, монитори, лаптопи:
Тонер касети и ремонт на принтери
Място за Вашата реклама в Портал за недвижими имоти NETIMOTI.NET
Администрация и поддръжка на сайта:
София Компютърс ЕООД : компютри, монитори, лаптопи, телефони, таблети, принтери и скенери: поправка на компютри, ремонт на компютри, ремонт и поправка на лаптопи, компютърни услуги и сервиз за компютри
Изработка на сайта, Web Design и оптимизация: DGP; 2008y. Remake: 2013y.
Този сайт използва „бисквитки“ (cookies). Разглеждайки съдържанието на сайта, Вие се съгласявате с нашите условия за ползване и използването на „бисквитки“.
Съгласен съм