Добави в бележник
Напиши мейл
Офертата е проблемна







|
Град: София Област: София Квартал: Лагера Вид имот: тристаен апартамент Акция: продава Пусков срок: Готов Материал: тухла |
Цена: 124 300 EUR за квадрат: 1200 EUR Чиста квадратура: 88 кв. м. Обща квадратура: 102 кв. м. Брой на стаите: 3 Етаж: 5 от общо: 8 Изложение: запад |
БЕЗ КОМИСИОННА !Продавам тристаен апартамент в затворен
жилищен комплекс. Комплексът е разположен в един от най-престижните райони на град София - Лагера. В близост до комплекса се намира парк Хиподрума , ритуална зала Красно село , две училища, детски градини, хипермаркет. Луксозно строителство, без компромиси с качеството на влаганите материали.огато озеленен вътрешен двор с ограничен достъп с изградена детска площадка и прекрасен плувен басейн. Месечната такса е около 60 лв. на жилище и включва жива охрана и всички разходи по поддръжка на комплекса.
До комплекса може да се стигне както с автомобил, така и с няколко линии на градския транспорт, метро и маршрутни таксита. Намира се на 7 минути от спирката на бъдещата метростанция Борис III . До центъра на столицата се стига за 10 минути.
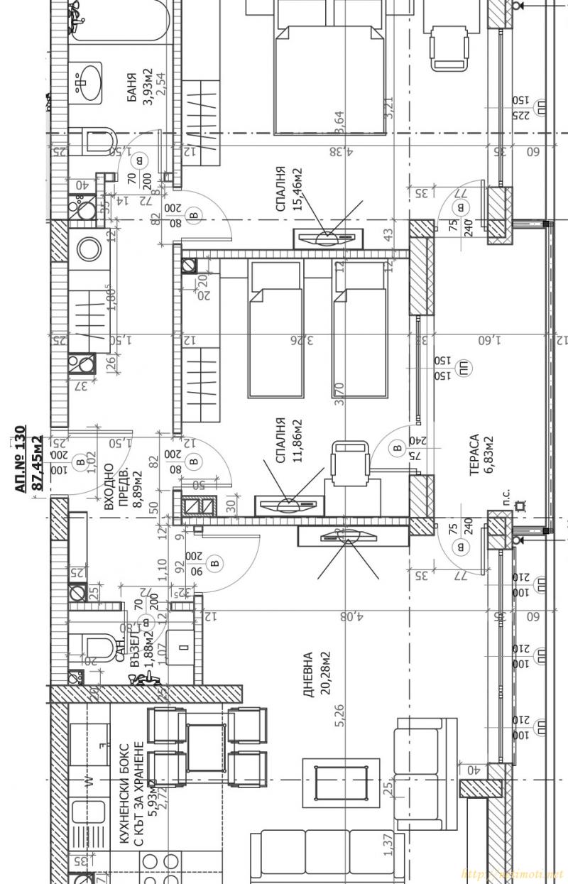
Изложенито на апартамента е югозапад.На приложеното изложение на етажа -ап.130. Жилищна площ без общи части-88 кв.м.Към апартамента има мазе от 3.3 кв.м.
Сградите ще бъдат завършени в 2021г.
За повече информация - Александров 0887755580
Частно лице.
Препоръчваме при контакт да уточните, че сте видяли тази информация в Портал за недвижими имоти netimoti.net с цел актуализирането на офертата!
По този начин, продавача или купувача на имота, ще може да редактира данните и да ги актуализира ако има промяна.
Ново търсене за:
продава - София - Лагера - тристаен апартамент »
или ново търсене за: продава - София - Лагера »
или ново търсене за: продава - София - тристаен апартамент »
или корекция на критериите за търсене »
Компютри, монитори, лаптопи:
Тонер касети и ремонт на принтери
Място за Вашата реклама в Портал за недвижими имоти NETIMOTI.NET
Администрация и поддръжка на сайта:
София Компютърс ЕООД : компютри, монитори, лаптопи, телефони, таблети, принтери и скенери: поправка на компютри, ремонт на компютри, ремонт и поправка на лаптопи, компютърни услуги и сервиз за компютри
Изработка на сайта, Web Design и оптимизация: DGP; 2008y. Remake: 2013y.
Този сайт използва „бисквитки“ (cookies). Разглеждайки съдържанието на сайта, Вие се съгласявате с нашите условия за ползване и използването на „бисквитки“.
Съгласен съм